首页
数字建安
关于我们
数字肥城
建安资讯
行业动态
平台资讯
政策法规
服务大厅
招标公告
用工需求
企业风采
重点企业
精品工程
评优标准
党建园地
党建活动
先锋模范
学习资料
欢迎,
{{peopleLoginRealName}} !
退出
登录
注册
首页
数字建安
关于我们
数字肥城
建安资讯
平台资讯
行业动态
政策法规
服务大厅
招标公告
用工需求
企业风采
重点企业
精品工程
评优标准
党建园地
党建活动
先锋模范
学习资料
招标公告详情
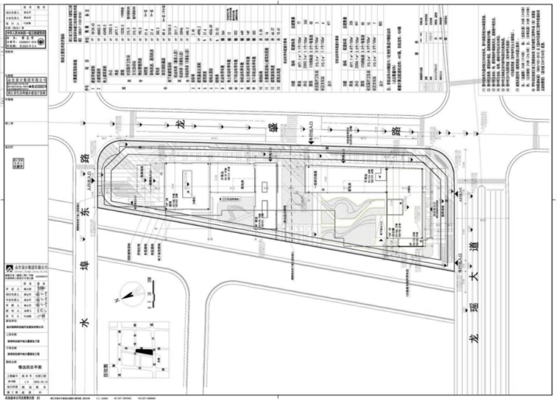
拟建项目--温州浙南科技城中驰大厦建设工程(批前公示)
发布时间
2023年05月24日 09:32:42
项目编号
项目名称
温州浙南科技城中驰大厦建设工程
项目地点
项目预算
0万元
建设单位
温州浙南科技城开发建设有限公司
招标代理机构
开标时间
无
附件
无
温州浙南科技城开发建设有限公司向本局提出建设工程规划许可申请,要求在龙水单元YB-04-G-12 地块进行温州浙南科技城中驰大厦建设工程(变更)。
返回列表
友情链接
>
住建部
>
全国建筑市场服务平台
>
山东省住建厅
>
中化工施工协会
>
泰安市住建局
>
中石化联合会
>
肥城市住建局
>
中国建材网
>
信用中国
>
鑫方盛